Top.Mail.Ru

Столярный переулок, д. 18

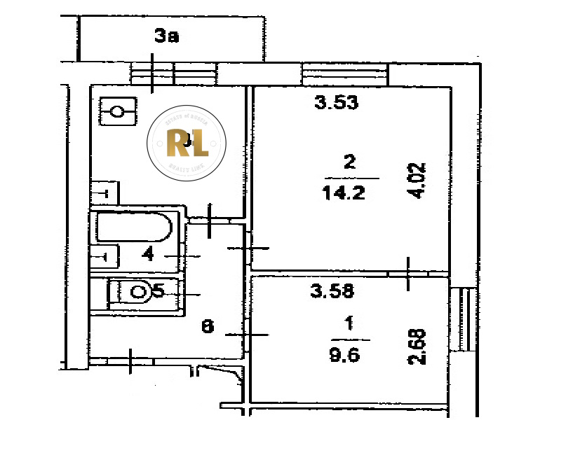
База каталог, Кол-во подъездов: 1, II-18/22, Москва, Пресненский, Площадь парковки: 0, Пассажирский лифт: 2, От метро: 245, Центральный, нет, Наименьшее кол-во этажей: 1, Наибольшее кол-во этажей: 12, Улица 1905 года, Кол-во помещений: 83, Кол-во нежилых помещений: 2, Год ввода в эксплуатацию: 1967, 2-комн, Кол-во жилых помещений: 81, Не присвоен, дом 18, да, да, да, да, да, да, Имеется, Грузовых лифтов: 0, Год постройки: 1967, Столярный переулок, 37.565183, 55.764222
Свяжитесь со мной на счет цены
10 дн.
D55S764222L37S565183D

На карте


Условия сделки

Источник


Старт продаж

Возможно заинтересует