Top.Mail.Ru

улица Сталеваров, д. 10, к. 2

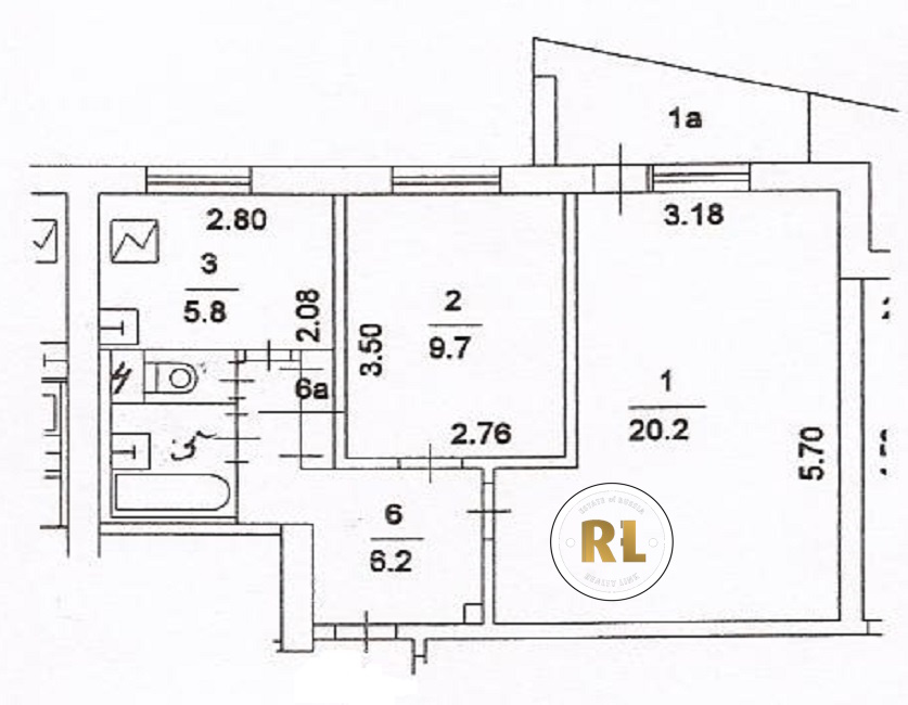
База каталог, Кол-во подъездов: 8, I-515, Москва, Ивановское, Площадь парковки: 0, Пассажирский лифт: 8, От метро: 2130, Восточный, нет, Наименьшее кол-во этажей: 9, Наибольшее кол-во этажей: 9, Новогиреево, Кол-во помещений: 288, Кол-во нежилых помещений: 1, Год ввода в эксплуатацию: 1973, 2-комн, Кол-во жилых помещений: 287, Не присвоен, дом 10, корпус 2, нет, да, да, нет, нет, нет, Отсутствует, Грузовых лифтов: 0, Год постройки: 1973, улица Сталеваров, 37.836564, 55.764602
Свяжитесь со мной на счет цены
10 дн.
D55S764602L37S836564D

На карте


Условия сделки

Источник


Старт продаж

Возможно заинтересует