Top.Mail.Ru

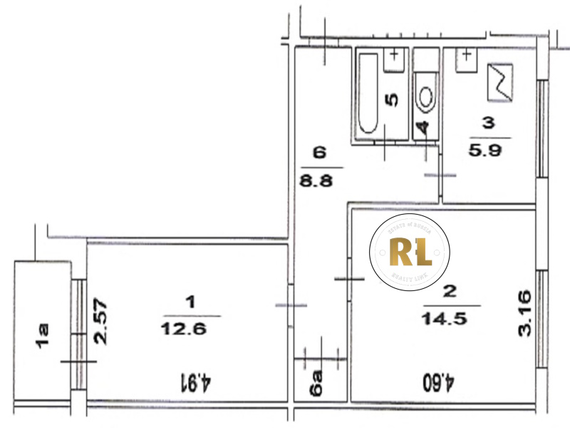
улица Молостовых, д. 1, к. 4

База каталог, Кол-во подъездов: 10, Отсутствует, II-49Д, Москва, Ивановское, Площадь парковки: 0, Пассажирский лифт: 10, От метро: 2060, Восточный, нет, Наименьшее кол-во этажей: 9, Наибольшее кол-во этажей: 9, Новогиреево, Кол-во помещений: 357, Кол-во нежилых помещений: 0, Год ввода в эксплуатацию: 1972, 2-комн, Кол-во жилых помещений: 357, Не присвоен, дом 1, корпус 4, нет, да, да, да, нет, нет, Отсутствует, Грузовых лифтов: 0, Год постройки: 1972, улица Молостовых, 37.833887, 55.764734
Свяжитесь со мной на счет цены
10 дн.
D55S764734L37S833887D

На карте


Условия сделки

Источник


Старт продаж

Возможно заинтересует