Top.Mail.Ru

Крюковский тупик, д. 6

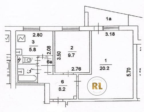
База каталог, Кол-во подъездов: 2, Имеется, I-515, Москва, Лефортово, Площадь парковки: 0, Пассажирский лифт: 2, От метро: 520, Юго-Восточный, нет, Наименьшее кол-во этажей: 9, Наибольшее кол-во этажей: 9, Лефортово, Кол-во помещений: 178, Кол-во нежилых помещений: 0, Год ввода в эксплуатацию: 1975, 2-комн, Кол-во жилых помещений: 178, А, дом 6, да, да, да, да, да, да, Имеется, Грузовых лифтов: 0, Год постройки: 1975, Крюковский тупик, 37.711617, 55.764886
Свяжитесь со мной на счет цены
10 дн.
D55S764886L37S711617D

На карте


Условия сделки

Источник


Старт продаж

Возможно заинтересует