Top.Mail.Ru

улица Сталеваров, д. 8/22, к. 3

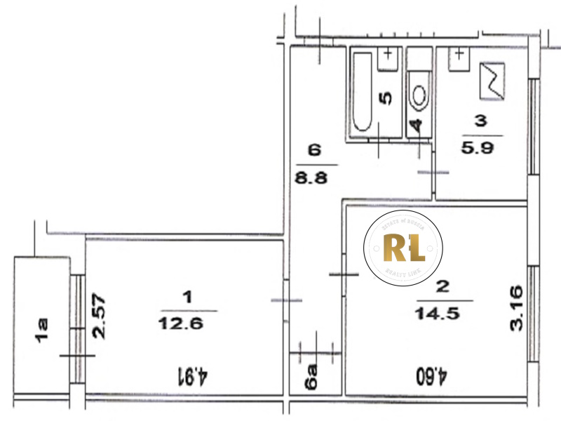
База каталог, Кол-во подъездов: 2, II-49Д, Москва, Ивановское, Площадь парковки: 0, Пассажирский лифт: 2, От метро: 2510, Восточный, нет, Наименьшее кол-во этажей: 9, Наибольшее кол-во этажей: 9, Новогиреево, Кол-во помещений: 72, Кол-во нежилых помещений: 0, Год ввода в эксплуатацию: 1972, 2-комн, Кол-во жилых помещений: 72, Не присвоен, дом 8/22, корпус 3, нет, да, да, нет, нет, нет, Отсутствует, Грузовых лифтов: 0, Год постройки: 1972, улица Сталеваров, 37.838818, 55.766683
Свяжитесь со мной на счет цены
10 дн.
D55S766683L37S838818D

На карте


Условия сделки

Источник


Старт продаж

Возможно заинтересует