Top.Mail.Ru

улица Новая Дорога, д. 3

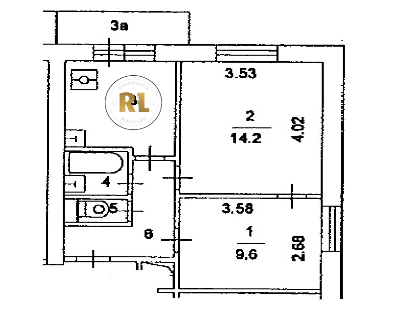
База каталог, Кол-во подъездов: 1, II-18/22, Москва, Басманный, Площадь парковки: 0, Пассажирский лифт: 2, От метро: 1150, Центральный, нет, Наименьшее кол-во этажей: 12, Наибольшее кол-во этажей: 12, Лефортово, Кол-во помещений: 86, Кол-во нежилых помещений: 2, Год ввода в эксплуатацию: 1967, 2-комн, Кол-во жилых помещений: 84, Не присвоен, дом 3, нет, да, да, да, да, нет, Грузовых лифтов: 0, Год постройки: 1967, улица Новая Дорога, 37.701583, 55.771393
Свяжитесь со мной на счет цены
10 дн.
D55S771393L37S701583D

На карте


Условия сделки

Источник


Старт продаж

Возможно заинтересует