Top.Mail.Ru

шоссе Энтузиастов, д. 100, к. 7

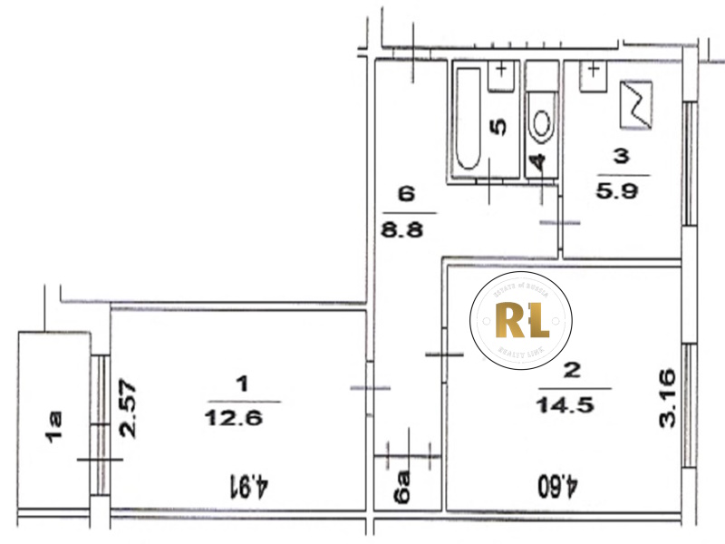
База каталог, Кол-во подъездов: 2, Отсутствует, II-49Д, Москва, Ивановское, Площадь парковки: 0, Пассажирский лифт: 2, От метро: 2920, Восточный, нет, Наименьшее кол-во этажей: 9, Наибольшее кол-во этажей: 9, Новогиреево, Кол-во помещений: 72, Кол-во нежилых помещений: 0, Год ввода в эксплуатацию: 1972, 2-комн, Кол-во жилых помещений: 72, Не присвоен, дом 100, корпус 7, нет, да, нет, нет, нет, нет, Отсутствует, Грузовых лифтов: 0, Год постройки: 1972, шоссе Энтузиастов, 37.837004, 55.771489
Свяжитесь со мной на счет цены
10 дн.
D55S771489L37S837004D

На карте


Условия сделки

Источник


Старт продаж

Возможно заинтересует