Top.Mail.Ru

улица Госпитальный Вал, д. 3, к. 6

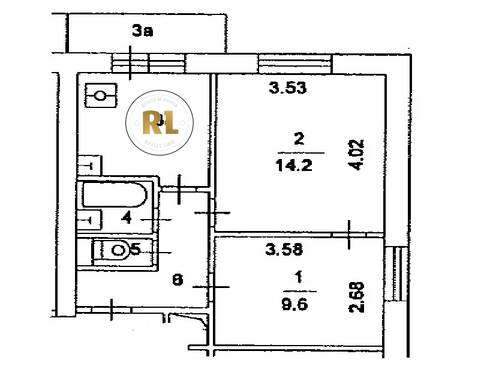
База каталог, Кол-во подъездов: 2, II-18/22, Москва, Басманный, Площадь парковки: 0, Пассажирский лифт: 4, От метро: 1200, Центральный, нет, Наименьшее кол-во этажей: 12, Наибольшее кол-во этажей: 12, Электрозаводская, Кол-во помещений: 180, Кол-во нежилых помещений: 2, Год ввода в эксплуатацию: 1967, 2-комн, Кол-во жилых помещений: 178, Не присвоен, дом 3, корпус 6, нет, да, да, да, да, нет, Отсутствует, Грузовых лифтов: 0, Год постройки: 1967, улица Госпитальный Вал, 37.703056, 55.771737
Свяжитесь со мной на счет цены
10 дн.
D55S771737L37S703056D

На карте


Условия сделки

Источник


Старт продаж

Возможно заинтересует