Top.Mail.Ru

улица Демьяна Бедного, д. 10

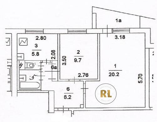
База каталог, Кол-во подъездов: 4, Имеется, I-515, Москва, Хорошево-Мневники, Площадь парковки: 0, Пассажирский лифт: 4, От метро: 232, Северо-Западный, нет, Наименьшее кол-во этажей: 9, Наибольшее кол-во этажей: 9, Народное Ополчение, Кол-во помещений: 144, Кол-во нежилых помещений: 1, Год ввода в эксплуатацию: 1969, 2-комн, Кол-во жилых помещений: 143, Не присвоен, дом 10, да, да, да, да, да, да, Имеется, Грузовых лифтов: 0, Год постройки: 1969, улица Демьяна Бедного, 37.489032, 55.774558
Свяжитесь со мной на счет цены
10 дн.
D55S774558L37S489032D

На карте


Условия сделки

Источник


Старт продаж

Возможно заинтересует