Top.Mail.Ru

проспект Маршала Жукова, д. 11, к. 1

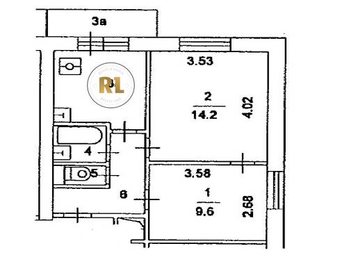
База каталог, Кол-во подъездов: 1, Отсутствует, II-18/22, Москва, Хорошево-Мневники, Площадь парковки: 464, Пассажирский лифт: 2, От метро: 560, Северо-Западный, да, Наименьшее кол-во этажей: 12, Наибольшее кол-во этажей: 12, Народное Ополчение, Кол-во помещений: 113, Кол-во нежилых помещений: 34, Год ввода в эксплуатацию: 1972, 2-комн, Кол-во жилых помещений: 79, Не присвоен, дом 11, корпус 1, да, да, да, да, да, да, Имеется, Грузовых лифтов: 0, Год постройки: 1972, проспект Маршала Жукова, 37.495680, 55.775454
Свяжитесь со мной на счет цены
10 дн.
D55S775454L37S495680D

На карте


Условия сделки

Источник


Старт продаж

Возможно заинтересует