Top.Mail.Ru

Семеновская набережная, д. 2/1, стр. 2

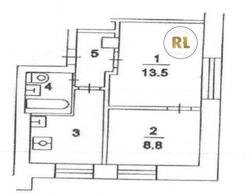
База каталог, Кол-во подъездов: 4, II-29, Москва, Басманный, Площадь парковки: 0, Пассажирский лифт: 4, От метро: 620, Центральный, нет, Наименьшее кол-во этажей: 9, Наибольшее кол-во этажей: 9, Электрозаводская, Кол-во помещений: 139, Кол-во нежилых помещений: 6, Год ввода в эксплуатацию: 1967, 2-комн, Кол-во жилых помещений: 133, Не присвоен, дом 2/1, строение 2, нет, да, да, да, да, да, Отсутствует, Грузовых лифтов: 0, Год постройки: 1967, Семеновская набережная, 37.705634, 55.776598
Свяжитесь со мной на счет цены
10 дн.
D55S776598L37S705634D

На карте


Условия сделки

Источник


Старт продаж

Возможно заинтересует