Top.Mail.Ru

проспект Буденного, д. 1/1, к. 2

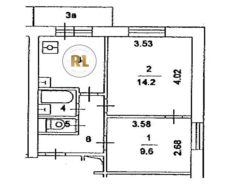
База каталог, Кол-во подъездов: 1, II-18-21/12, Москва, Соколиная Гора, Площадь парковки: 0, Пассажирский лифт: 2, От метро: 800, Восточный, нет, Наименьшее кол-во этажей: 12, Наибольшее кол-во этажей: 12, Семёновская, Кол-во помещений: 85, Кол-во нежилых помещений: 5, Год ввода в эксплуатацию: 1971, 2-комн, Кол-во жилых помещений: 80, Не присвоен, дом 1/1, корпус 2, нет, да, да, да, да, да, Грузовых лифтов: 0, Год постройки: 1971, проспект Буденного, 37.723295, 55.778416
Свяжитесь со мной на счет цены
10 дн.
D55S778416L37S723295D

На карте


Условия сделки

Источник


Старт продаж

Возможно заинтересует