Top.Mail.Ru

улица Чечулина, д. 18

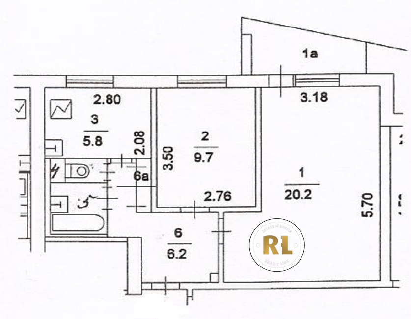
База каталог, Кол-во подъездов: 6, Имеется, I-515, Москва, Ивановское, Площадь парковки: 0, Пассажирский лифт: 6, От метро: 2980, Восточный, нет, Наименьшее кол-во этажей: 1, Наибольшее кол-во этажей: 9, Первомайская, Кол-во помещений: 216, Кол-во нежилых помещений: 1, Год ввода в эксплуатацию: 1977, 2-комн, Кол-во жилых помещений: 215, Не присвоен, дом 18, нет, да, нет, нет, нет, нет, Имеется, Грузовых лифтов: 0, Год постройки: 1977, улица Чечулина, 37.829871, 55.780912
Свяжитесь со мной на счет цены
10 дн.
D55S780912L37S829871D

На карте


Условия сделки

Источник


Старт продаж

Возможно заинтересует