Top.Mail.Ru

улица Куусинена, д. 6А, к. 1

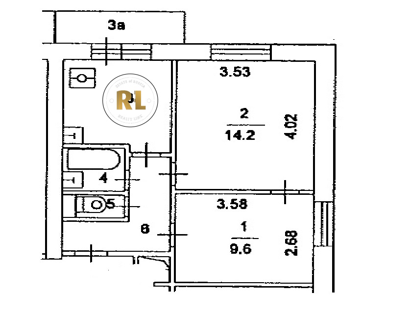
База каталог, Кол-во подъездов: 1, II-18-01/12, Москва, Хорошевский, Площадь парковки: 0, Пассажирский лифт: 2, От метро: 600, Северный, нет, Наименьшее кол-во этажей: 12, Наибольшее кол-во этажей: 12, Полежаевская, Кол-во помещений: 86, Кол-во нежилых помещений: 2, Год ввода в эксплуатацию: 1970, 2-комн, Кол-во жилых помещений: 84, E, дом 6А, корпус 1, нет, да, да, да, да, да, Грузовых лифтов: 0, Год постройки: 1970, улица Куусинена, 37.519665, 55.782547
Свяжитесь со мной на счет цены
10 дн.
D55S782547L37S519665D

На карте


Условия сделки

Источник


Старт продаж

Возможно заинтересует