Top.Mail.Ru

улица Гастелло, д. 12

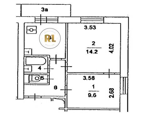
База каталог, Кол-во подъездов: 1, Отсутствует, II-18/22, Москва, Сокольники, Площадь парковки: 0, Пассажирский лифт: 2, От метро: 760, Восточный, нет, Наименьшее кол-во этажей: 12, Наибольшее кол-во этажей: 12, Сокольники, Кол-во помещений: 152, Кол-во нежилых помещений: 68, Год ввода в эксплуатацию: 1966, 2-комн, Кол-во жилых помещений: 84, Не присвоен, дом 12, нет, да, да, да, да, да, Отсутствует, Грузовых лифтов: 0, Год постройки: 1966, улица Гастелло, 37.685611, 55.784845
Свяжитесь со мной на счет цены
10 дн.
D55S784845L37S685611D

На карте


Условия сделки

Источник


Старт продаж

Возможно заинтересует