Top.Mail.Ru

Мироновская ул., д. 10

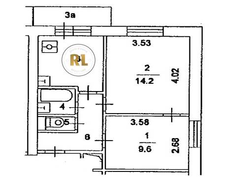
База каталог, Кол-во нежилых помещений: 0, II-18-01-МН, Москва, Соколиная Гора, Пассажирский лифт: 2, От метро: 890, Восточный, да, Наименьшее кол-во этажей: 12, Наибольшее кол-во этажей: 12, Измайлово, Кол-во помещений: 84, Кол-во подъездов: 1, 2-комн, Год ввода в эксплуатацию: 1969, Кол-во жилых помещений: 84, Не присвоен, дом 10, нет, да, да, да, да, да, Имеется, Грузовых лифтов: 0, Год постройки: 1969, Мироновская улица, 37.734255, 55.785361
Свяжитесь со мной на счет цены
10 дн.
D55S785361L37S734255D

На карте


Условия сделки

Источник


Старт продаж

Возможно заинтересует