Top.Mail.Ru

Русаковская ул., д. 25

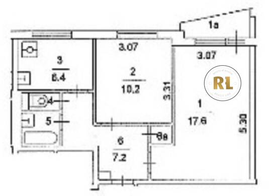
База каталог, Кол-во подъездов: 5, II-57, Москва, Сокольники, Площадь парковки: 0, Пассажирский лифт: 5, От метро: 490, Восточный, нет, Наименьшее кол-во этажей: 12, Наибольшее кол-во этажей: 12, Сокольники, Кол-во помещений: 239, Кол-во нежилых помещений: 1, Год ввода в эксплуатацию: 1971, 2-комн, Кол-во жилых помещений: 238, Не присвоен, дом 25, да, да, да, да, да, да, Грузовых лифтов: 5, Год постройки: 1971, Русаковская улица, 37.675873, 55.786915
18 500 000 Р
10 дн.
D55S786915L37S675873D
+

На карте


Условия сделки

Источник


Старт продаж