Top.Mail.Ru

Трифоновская ул., д. 4

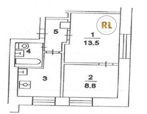
База каталог, Кол-во подъездов: 5, II-29, Москва, Марьина Роща, Площадь парковки: 0, Пассажирский лифт: 5, От метро: 810, Северо-Восточный, нет, Наименьшее кол-во этажей: 9, Наибольшее кол-во этажей: 9, Марьина Роща, Кол-во помещений: 161, Кол-во нежилых помещений: 1, Год ввода в эксплуатацию: 1970, 2-комн, Кол-во жилых помещений: 160, Не присвоен, дом 4, нет, да, да, да, да, да, Имеется, Грузовых лифтов: 5, Год постройки: 1970, Трифоновская улица, 37.612677, 55.788125
Свяжитесь со мной на счет цены
10 дн.
D55S788125L37S612677D

На карте


Условия сделки

Источник


Старт продаж

Возможно заинтересует