Top.Mail.Ru

улица Новая Башиловка, д. 12

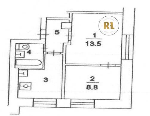
База каталог, Кол-во подъездов: 1, Имеется, II-29-41/37, Москва, Беговой, Площадь парковки: 0, Пассажирский лифт: 1, От метро: 830, Северный, нет, Наименьшее кол-во этажей: 9, Наибольшее кол-во этажей: 9, Динамо, Кол-во помещений: 66, Кол-во нежилых помещений: 2, Год ввода в эксплуатацию: 1962, 2-комн, Кол-во жилых помещений: 64, E, дом 12, нет, да, да, да, да, да, Имеется, Грузовых лифтов: 0, Год постройки: 1962, улица Новая Башиловка, 37.570689, 55.788571
Свяжитесь со мной на счет цены
10 дн.
D55S788571L37S570689D

На карте


Условия сделки

Источник


Старт продаж

Возможно заинтересует