Top.Mail.Ru

Измайловский проспект, д. 85

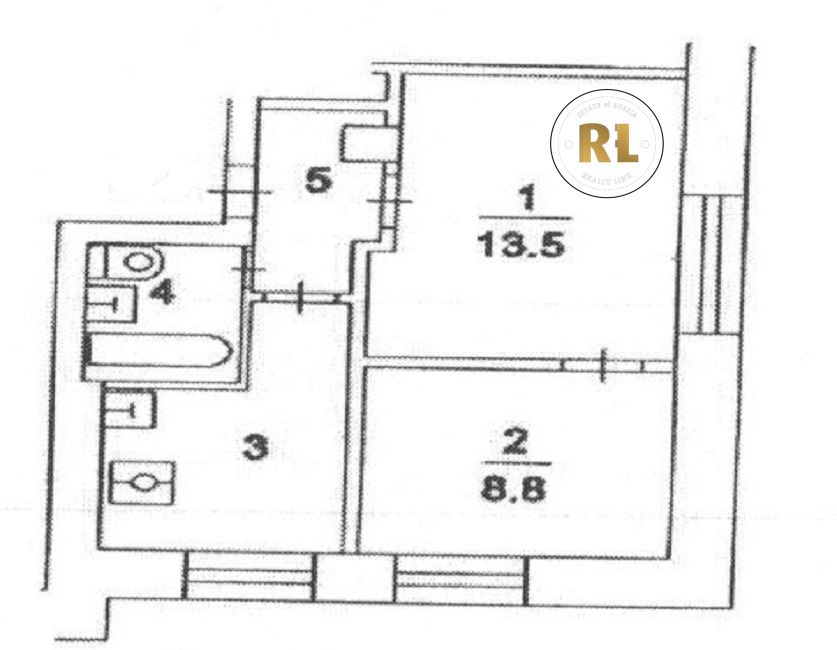
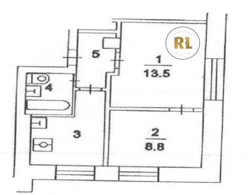
База каталог, Кол-во подъездов: 3, II-29, Москва, Восточное Измайлово, Площадь парковки: 0, Пассажирский лифт: 3, От метро: 660, Восточный, нет, Наименьшее кол-во этажей: 9, Наибольшее кол-во этажей: 9, Первомайская, Кол-во помещений: 108, Кол-во нежилых помещений: 0, Год ввода в эксплуатацию: 1964, 2-комн, Кол-во жилых помещений: 108, Не присвоен, дом 85, нет, да, да, да, да, да, Отсутствует, Грузовых лифтов: 0, Год постройки: 1964, Измайловский проспект, 37.802652, 55.789163
Свяжитесь со мной на счет цены
10 дн.
D55S789163L37S802652D

На карте


Условия сделки

Источник


Старт продаж

Возможно заинтересует