Top.Mail.Ru

Измайловский проспект, д. 93, к. 1

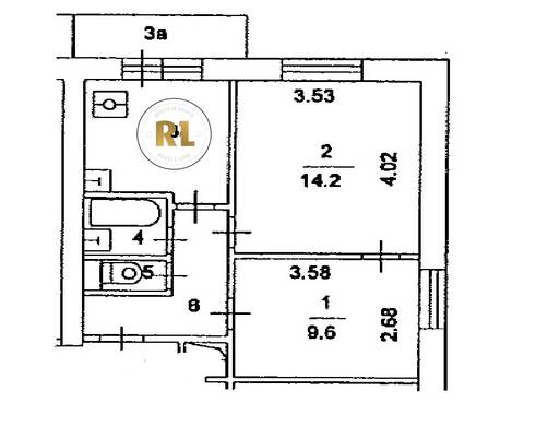
База каталог, Кол-во подъездов: 1, II-18, Москва, Восточное Измайлово, Площадь парковки: 0, Пассажирский лифт: 2, От метро: 980, Восточный, нет, Наименьшее кол-во этажей: 1, Наибольшее кол-во этажей: 12, Первомайская, Кол-во помещений: 150, Кол-во нежилых помещений: 1, Год ввода в эксплуатацию: 1967, 2-комн, Кол-во жилых помещений: 149, Не присвоен, дом 93, корпус 1, нет, да, да, да, да, да, Грузовых лифтов: 0, Год постройки: 1967, Измайловский проспект, 37.808707, 55.789183
Свяжитесь со мной на счет цены
10 дн.
D55S789183L37S808707D

На карте


Условия сделки

Источник


Старт продаж

Возможно заинтересует