Top.Mail.Ru

Лазаревский переулок, д. 2

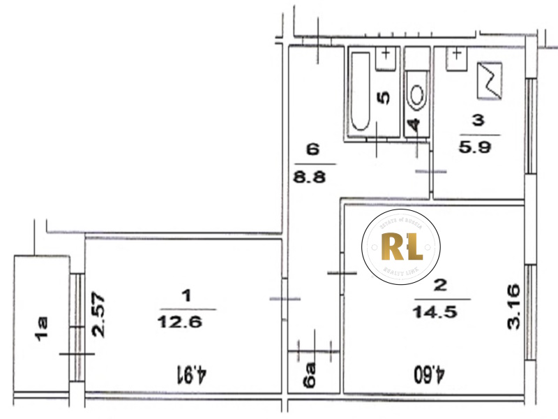
База каталог, Кол-во подъездов: 4, II-49Д, Москва, Марьина Роща, Площадь парковки: 0, Пассажирский лифт: 4, От метро: 610, Северо-Восточный, нет, Наименьшее кол-во этажей: 9, Наибольшее кол-во этажей: 9, Марьина Роща, Кол-во помещений: 143, Кол-во нежилых помещений: 1, Год ввода в эксплуатацию: 1972, 2-комн, Кол-во жилых помещений: 142, Не присвоен, дом 2, нет, да, да, да, да, да, Имеется, Грузовых лифтов: 0, Год постройки: 1972, Лазаревский переулок, 37.610637, 55.790848
Свяжитесь со мной на счет цены
10 дн.
D55S790848L37S610637D

На карте


Условия сделки

Источник


Старт продаж

Возможно заинтересует