Top.Mail.Ru

Нижняя Первомайская ул., д. 24

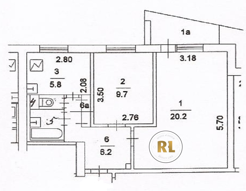
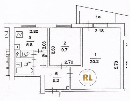
База каталог, Кол-во подъездов: 8, I-515, Москва, Восточное Измайлово, Площадь парковки: 0, Пассажирский лифт: 8, От метро: 460, Восточный, нет, Наименьшее кол-во этажей: 1, Наибольшее кол-во этажей: 9, Первомайская, Кол-во помещений: 638, Кол-во нежилых помещений: 1, Год ввода в эксплуатацию: 1970, 2-комн, Кол-во жилых помещений: 637, Не присвоен, дом 24, да, да, да, да, да, да, Грузовых лифтов: 0, Год постройки: 1970, Нижняя Первомайская улица, 37.802374, 55.790853
Свяжитесь со мной на счет цены
10 дн.
D55S790853L37S802374D

На карте


Условия сделки

Источник


Старт продаж

Возможно заинтересует