Top.Mail.Ru

Нижняя Первомайская ул., д. 3

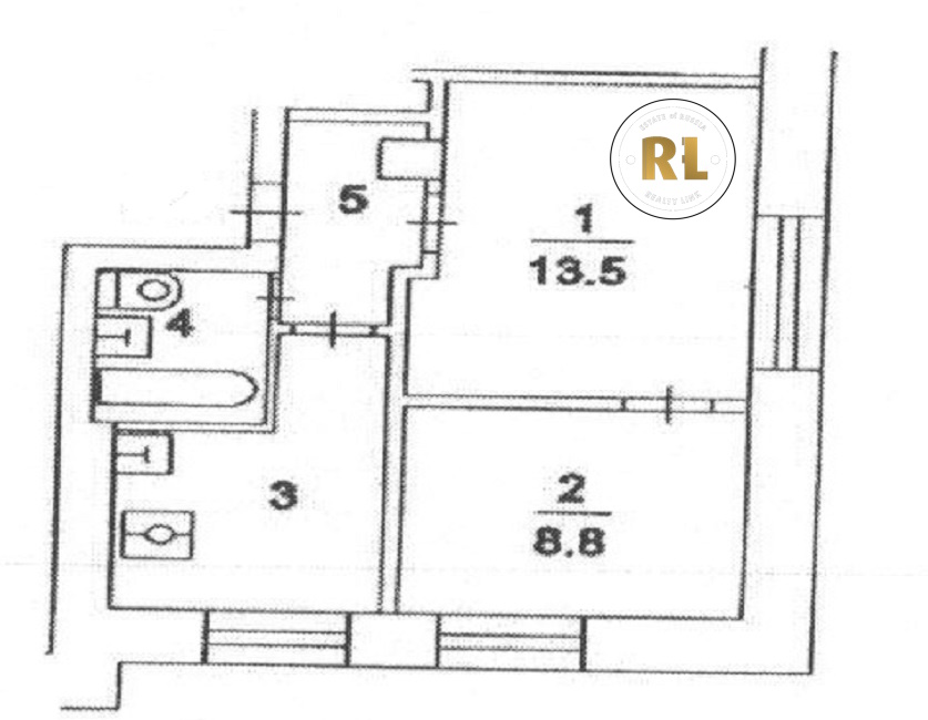
База каталог, Кол-во подъездов: 1, II-29, Москва, Измайлово, Пассажирский лифт: 1, От метро: 680, Восточный, да, Наименьшее кол-во этажей: 9, Наибольшее кол-во этажей: 9, Первомайская, Кол-во помещений: 73, Кол-во нежилых помещений: 1, Год ввода в эксплуатацию: 1967, 2-комн, Кол-во жилых помещений: 72, дом 3, нет, да, да, да, да, да, Грузовых лифтов: 0, Год постройки: 1967, Нижняя Первомайская улица, 37.792025, 55.791228
12 900 000 Р
10 дн.
D55S791228L37S792025D
+

На карте


Условия сделки

Источник


Старт продаж