Top.Mail.Ru

11-я Парковая ул., д. 9/35

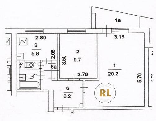
База каталог, Кол-во подъездов: 8, I-515, Москва, Восточное Измайлово, Пассажирский лифт: 8, От метро: 480, Восточный, да, Наименьшее кол-во этажей: 1, Наибольшее кол-во этажей: 9, Первомайская, Кол-во помещений: 614, Кол-во нежилых помещений: 6, Год ввода в эксплуатацию: 1969, 2-комн, Кол-во жилых помещений: 608, Не присвоен, дом 9/35, да, да, да, да, да, да, Грузовых лифтов: 0, Год постройки: 1969, 11-я Парковая улица, 37.805230, 55.792002
Свяжитесь со мной на счет цены
10 дн.
D55S792002L37S805230D

На карте


Условия сделки

Источник


Старт продаж

Возможно заинтересует