Top.Mail.Ru

3-я Парковая ул., д. 25

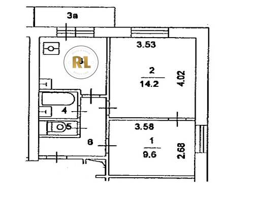
База каталог, Кол-во подъездов: 2, Отсутствует, II-18/22, Москва, Измайлово, Площадь парковки: 0, Пассажирский лифт: 4, От метро: 690, Восточный, нет, Наименьшее кол-во этажей: 12, Наибольшее кол-во этажей: 12, Измайловская, Кол-во помещений: 175, Кол-во нежилых помещений: 0, Год ввода в эксплуатацию: 1969, 2-комн, Кол-во жилых помещений: 175, E, дом 25, нет, да, да, да, да, да, Отсутствует, Грузовых лифтов: 0, Год постройки: 1969, 3-я Парковая улица, 37.782153, 55.793181
Свяжитесь со мной на счет цены
10 дн.
D55S793181L37S782153D

На карте


Условия сделки

Источник


Старт продаж

Возможно заинтересует