Top.Mail.Ru

Большая Черкизовская ул., д. 6, к. 6

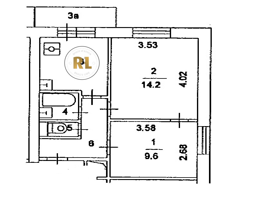
База каталог, Кол-во подъездов: 1, II-18, Москва, Преображенское, Площадь парковки: 0, Пассажирский лифт: 2, От метро: 420, Восточный, нет, Наименьшее кол-во этажей: 12, Наибольшее кол-во этажей: 12, Преображенская площадь, Кол-во помещений: 83, Кол-во нежилых помещений: 3, Год ввода в эксплуатацию: 1966, 2-комн, Кол-во жилых помещений: 80, D, дом 6, корпус 6, да, да, да, да, да, да, Грузовых лифтов: 0, Год постройки: 1966, Большая Черкизовская улица, 37.720456, 55.793612
Свяжитесь со мной на счет цены
10 дн.
D55S793612L37S720456D

На карте


Условия сделки

Источник


Старт продаж

Возможно заинтересует