Top.Mail.Ru

3-я Парковая ул., д. 22

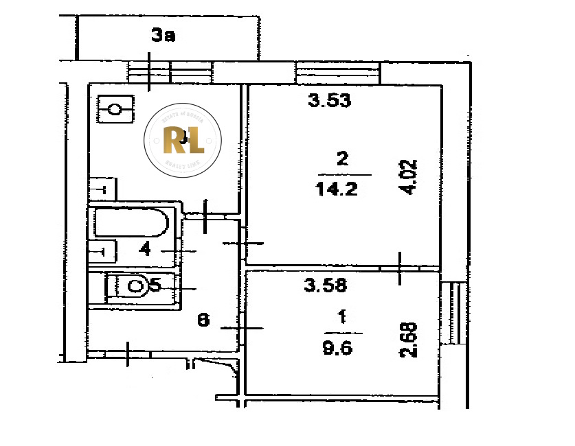
База каталог, Кол-во подъездов: 1, II-18/22, Москва, Измайлово, Площадь парковки: 169, Пассажирский лифт: 2, От метро: 830, Восточный, да, Наименьшее кол-во этажей: 12, Наибольшее кол-во этажей: 12, Измайловская, Кол-во помещений: 81, Кол-во нежилых помещений: 0, Год ввода в эксплуатацию: 1969, 2-комн, Кол-во жилых помещений: 81, дом 22, нет, да, да, да, да, да, Имеется, Грузовых лифтов: 0, Год постройки: 1969, 3-я Парковая улица, 37.783338, 55.794315
Свяжитесь со мной на счет цены
10 дн.
D55S794315L37S783338D

На карте


Условия сделки

Источник


Старт продаж

Возможно заинтересует