Top.Mail.Ru

Первомайская ул., д. 113, к. 1

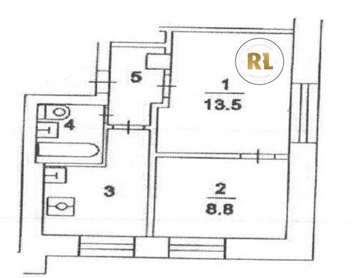
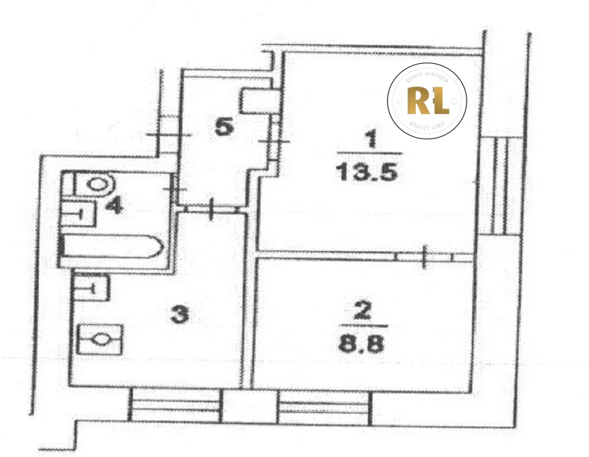
База каталог, Кол-во подъездов: 1, II-29, Москва, Восточное Измайлово, Площадь парковки: 0, Пассажирский лифт: 1, От метро: 1100, Восточный, нет, Наименьшее кол-во этажей: 1, Наибольшее кол-во этажей: 9, Первомайская, Кол-во помещений: 117, Кол-во нежилых помещений: 1, Год ввода в эксплуатацию: 1967, 2-комн, Кол-во жилых помещений: 116, Не присвоен, дом 113, корпус 1, нет, да, да, да, да, нет, Грузовых лифтов: 0, Год постройки: 1967, Первомайская улица, 37.815696, 55.794381
Свяжитесь со мной на счет цены
10 дн.
D55S794381L37S815696D

На карте


Условия сделки

Источник


Старт продаж

Возможно заинтересует