Top.Mail.Ru

улица Двинцев, д. 8

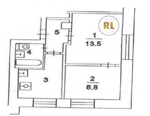
База каталог, Кол-во подъездов: 5, II-29, Москва, Марьина Роща, Площадь парковки: 0, Пассажирский лифт: 5, От метро: 1020, Северо-Восточный, нет, Наименьшее кол-во этажей: 9, Наибольшее кол-во этажей: 9, Савёловская, Кол-во помещений: 160, Кол-во нежилых помещений: 1, Год ввода в эксплуатацию: 1971, 2-комн, Кол-во жилых помещений: 159, Не присвоен, дом 8, нет, да, да, да, да, да, Имеется, Грузовых лифтов: 0, Год постройки: 1971, улица Двинцев, 37.600819, 55.794573
Свяжитесь со мной на счет цены
10 дн.
D55S794573L37S600819D

На карте


Условия сделки

Источник


Старт продаж

Возможно заинтересует