Top.Mail.Ru

2-я Пугачевская ул., д. 7, к. 1

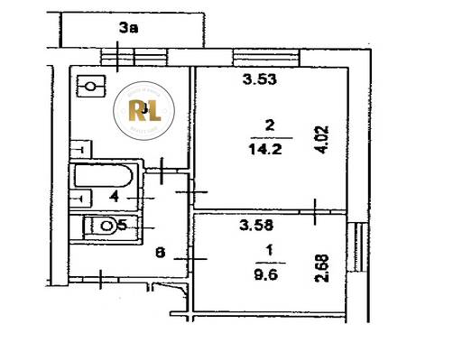
База каталог, Кол-во подъездов: 2, II-18, Москва, Преображенское, Площадь парковки: 0, Пассажирский лифт: 4, От метро: 1010, Восточный, нет, Наименьшее кол-во этажей: 12, Наибольшее кол-во этажей: 12, Преображенская площадь, Кол-во помещений: 168, Кол-во нежилых помещений: 0, Год ввода в эксплуатацию: 1971, 2-комн, Кол-во жилых помещений: 168, E, дом 7, корпус 1, нет, да, да, да, да, да, Имеется, Грузовых лифтов: 0, Год постройки: 1971, 2-я Пугачевская улица, 37.730302, 55.794988
Свяжитесь со мной на счет цены
10 дн.
D55S794988L37S730302D

На карте


Условия сделки

Источник


Старт продаж

Возможно заинтересует