Top.Mail.Ru

Большая Черкизовская ул., д. 32, к. 3

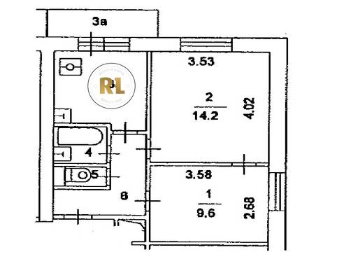
База каталог, Кол-во подъездов: 1, II-18, Москва, Преображенское, Площадь парковки: 0, Пассажирский лифт: 2, От метро: 690, Восточный, нет, Наименьшее кол-во этажей: 12, Наибольшее кол-во этажей: 12, Черкизовская, Кол-во помещений: 87, Кол-во нежилых помещений: 3, Год ввода в эксплуатацию: 1971, 2-комн, Кол-во жилых помещений: 84, D, дом 32, корпус 3, нет, да, да, да, да, да, Имеется, Грузовых лифтов: 0, Год постройки: 1971, Большая Черкизовская улица, 37.742771, 55.797898
Свяжитесь со мной на счет цены
10 дн.
D55S797898L37S742771D

На карте


Условия сделки

Источник


Старт продаж

Возможно заинтересует