Top.Mail.Ru

Большая Черкизовская ул., д. 32, к. 1

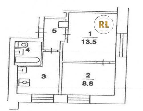
База каталог, Кол-во подъездов: 9, II-29, Москва, Преображенское, Площадь парковки: 0, Пассажирский лифт: 9, От метро: 490, Восточный, нет, Наименьшее кол-во этажей: 9, Наибольшее кол-во этажей: 9, Черкизовская, Кол-во помещений: 315, Кол-во нежилых помещений: 8, Год ввода в эксплуатацию: 1968, 2-комн, Кол-во жилых помещений: 307, D, дом 32, корпус 1, да, да, да, да, да, да, Имеется, Грузовых лифтов: 0, Год постройки: 1968, Большая Черкизовская улица, 37.743678, 55.799856
Свяжитесь со мной на счет цены
10 дн.
D55S799856L37S743678D

На карте


Условия сделки

Источник


Старт продаж

Возможно заинтересует