Top.Mail.Ru

Никитинская ул., д. 17, к. 3

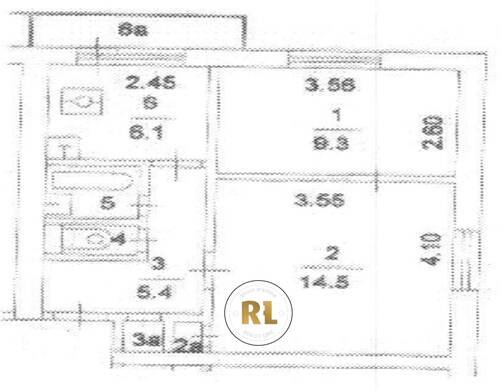
База каталог, Кол-во подъездов: 1, II-18-01/9, Москва, Измайлово, Площадь парковки: 0, Пассажирский лифт: 1, От метро: 1560, Восточный, нет, Наименьшее кол-во этажей: 9, Наибольшее кол-во этажей: 9, Измайловская, Кол-во помещений: 64, Кол-во нежилых помещений: 1, Год ввода в эксплуатацию: 1971, 2-комн, Кол-во жилых помещений: 63, D, дом 17, корпус 3, нет, да, да, да, да, нет, Грузовых лифтов: 0, Год постройки: 1971, Никитинская улица, 37.772882, 55.799866
Свяжитесь со мной на счет цены
10 дн.
D55S799866L37S772882D

На карте


Условия сделки

Источник


Старт продаж

Возможно заинтересует