Top.Mail.Ru

Халтуринская ул., д. 9, к. 3

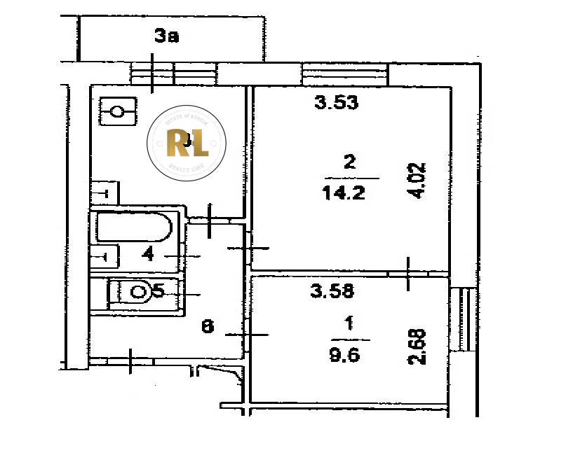
База каталог, Кол-во подъездов: 1, II-18, Москва, Преображенское, Площадь парковки: 0, Пассажирский лифт: 2, От метро: 880, Восточный, нет, Наименьшее кол-во этажей: 1, Наибольшее кол-во этажей: 12, Преображенская площадь, Кол-во помещений: 84, Кол-во нежилых помещений: 0, Год ввода в эксплуатацию: 1968, 2-комн, Кол-во жилых помещений: 84, D, дом 9, корпус 3, нет, да, да, да, да, да, Имеется, Грузовых лифтов: 0, Год постройки: 1968, Халтуринская улица, 37.725164, 55.800853
Свяжитесь со мной на счет цены
10 дн.
D55S800853L37S725164D

На карте


Условия сделки

Источник


Старт продаж

Возможно заинтересует