Top.Mail.Ru

Халтуринская ул., д. 13

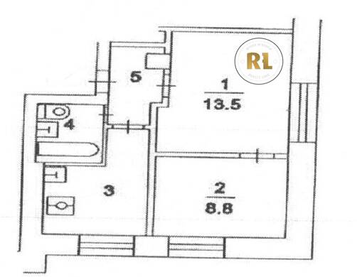
База каталог, Кол-во подъездов: 8, Имеется, II-29-04/Ю37, Москва, Преображенское, Пассажирский лифт: 8, От метро: 1050, Восточный, да, Наименьшее кол-во этажей: 9, Наибольшее кол-во этажей: 9, Преображенская площадь, Кол-во помещений: 288, Кол-во нежилых помещений: 6, Год ввода в эксплуатацию: 1971, 2-комн, Кол-во жилых помещений: 282, Не присвоен, дом 13, нет, да, да, да, да, да, Имеется, Грузовых лифтов: 0, Год постройки: 1971, Халтуринская улица, 37.724975, 55.802199
15 000 000 Р
10 дн.
D55S802199L37S724975D
+

На карте


Условия сделки

Источник