Top.Mail.Ru

Сиреневый бульвар, д. 58

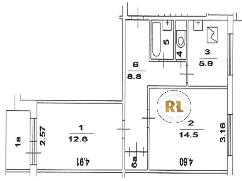
База каталог, Кол-во подъездов: 4, Имеется, II-49Д, Москва, Восточное Измайлово, Площадь парковки: 0, Пассажирский лифт: 4, От метро: 2230, Восточный, нет, Наименьшее кол-во этажей: 9, Наибольшее кол-во этажей: 9, Первомайская, Кол-во помещений: 143, Кол-во нежилых помещений: 0, Год ввода в эксплуатацию: 1968, 2-комн, Кол-во жилых помещений: 143, Не присвоен, дом 58, нет, да, да, нет, нет, нет, Имеется, Грузовых лифтов: 0, Год постройки: 1968, Сиреневый бульвар, 37.824688, 55.802330
Свяжитесь со мной на счет цены
10 дн.
D55S802330L37S824688D

На карте


Условия сделки

Источник


Старт продаж

Возможно заинтересует