Top.Mail.Ru

Знаменская ул., д. 19

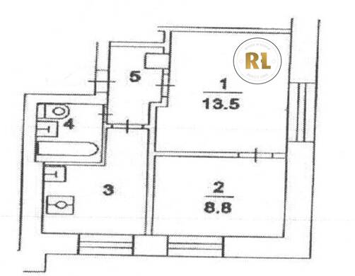
База каталог, Кол-во подъездов: 5, Имеется, II-29-05/Ю37, Москва, Преображенское, Пассажирский лифт: 5, От метро: 810, Восточный, да, Наименьшее кол-во этажей: 9, Наибольшее кол-во этажей: 9, Преображенская площадь, Кол-во помещений: 180, Кол-во нежилых помещений: 0, Год ввода в эксплуатацию: 1970, 2-комн, Кол-во жилых помещений: 180, Не присвоен, дом 19, нет, да, да, да, да, да, Имеется, Грузовых лифтов: 0, Год постройки: 1970, Знаменская улица, 37.716531, 55.802548
Свяжитесь со мной на счет цены
10 дн.
D55S802548L37S716531D

На карте


Условия сделки

Источник


Старт продаж

Возможно заинтересует