Top.Mail.Ru

Зельев переулок, д. 9

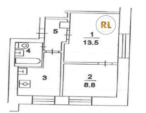
База каталог, Кол-во подъездов: 1, Имеется, II-29, Москва, Преображенское, Пассажирский лифт: 2, От метро: 960, Восточный, да, Наименьшее кол-во этажей: 9, Наибольшее кол-во этажей: 9, Преображенская площадь, Кол-во помещений: 55, Кол-во нежилых помещений: 1, Год ввода в эксплуатацию: 1980, 2-комн, Кол-во жилых помещений: 54, Не присвоен, дом 9, нет, да, да, да, да, да, Имеется, Грузовых лифтов: 0, Год постройки: 1980, Зельев переулок, 37.718498, 55.803408
Свяжитесь со мной на счет цены
10 дн.
D55S803408L37S718498D

На карте


Условия сделки

Источник


Старт продаж

Возможно заинтересует