Top.Mail.Ru

Халтуринская ул., д. 17

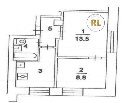
База каталог, Кол-во подъездов: 8, Имеется, II-29-04/Ю37, Москва, Преображенское, Пассажирский лифт: 8, От метро: 1170, Восточный, да, Наименьшее кол-во этажей: 9, Наибольшее кол-во этажей: 9, Преображенская площадь, Кол-во помещений: 289, Кол-во нежилых помещений: 3, Год ввода в эксплуатацию: 1970, 2-комн, Кол-во жилых помещений: 286, Не присвоен, дом 17, нет, да, да, да, да, нет, Имеется, Грузовых лифтов: 0, Год постройки: 1970, Халтуринская улица, 37.724652, 55.803454
13 500 000 Р
10 дн.
D55S803454L37S724652D
+

На карте


Условия сделки

Источник