Top.Mail.Ru

Сиреневый бульвар, д. 65, к. 1

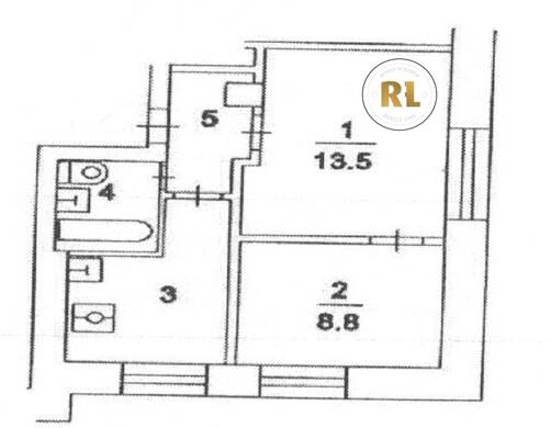
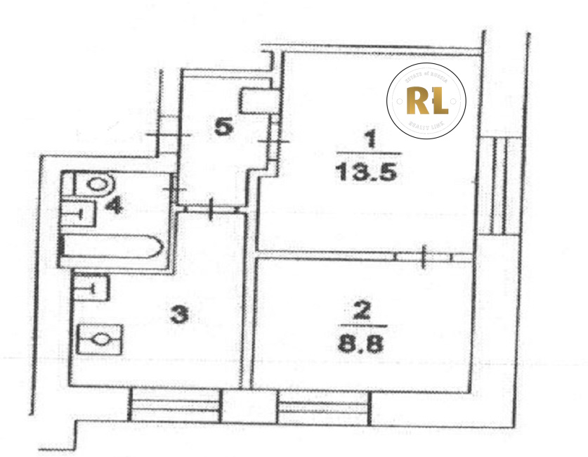
База каталог, Кол-во подъездов: 4, Отсутствует, II-29-04/Ю37, Москва, Северное Измайлово, Пассажирский лифт: 4, От метро: 1970, Восточный, да, Наименьшее кол-во этажей: 9, Наибольшее кол-во этажей: 9, Щёлковская, Кол-во помещений: 133, Кол-во нежилых помещений: 5, Год ввода в эксплуатацию: 1966, 2-комн, Кол-во жилых помещений: 128, дом 65, корпус 1, нет, да, да, да, нет, нет, Отсутствует, Грузовых лифтов: 0, Год постройки: 1966, Сиреневый бульвар, 37.821562, 55.803621
Свяжитесь со мной на счет цены
10 дн.
D55S803621L37S821562D

На карте


Условия сделки

Источник


Старт продаж

Возможно заинтересует