Top.Mail.Ru

Сиреневый бульвар, д. 69, к. 1

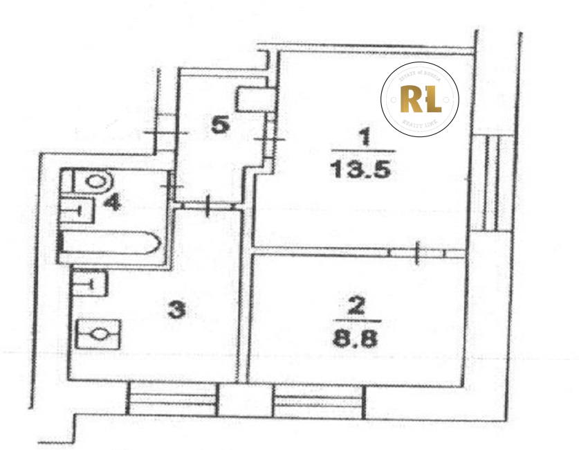
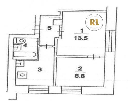
База каталог, Кол-во подъездов: 8, Отсутствует, II-29-04/Ю37, Москва, Северное Измайлово, Площадь парковки: 0, Пассажирский лифт: 8, От метро: 2140, Восточный, нет, Наименьшее кол-во этажей: 9, Наибольшее кол-во этажей: 9, Щёлковская, Кол-во помещений: 263, Кол-во нежилых помещений: 6, Год ввода в эксплуатацию: 1967, 2-комн, Кол-во жилых помещений: 257, Не присвоен, дом 69, корпус 1, нет, да, да, нет, нет, нет, Имеется, Грузовых лифтов: 0, Год постройки: 1967, Сиреневый бульвар, 37.824679, 55.803651
Свяжитесь со мной на счет цены
10 дн.
D55S803651L37S824679D

На карте


Условия сделки

Источник


Старт продаж

Возможно заинтересует