Top.Mail.Ru

улица Годовикова, д. 1, к. 2

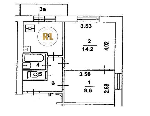
База каталог, Кол-во подъездов: 1, Имеется, II-18/22, Москва, Останкинский, Площадь парковки: 0, Пассажирский лифт: 2, От метро: 980, Северо-Восточный, нет, Наименьшее кол-во этажей: 12, Наибольшее кол-во этажей: 12, Алексеевская, Кол-во помещений: 84, Кол-во нежилых помещений: 0, Год ввода в эксплуатацию: 1969, 2-комн, Кол-во жилых помещений: 84, D, дом 1, корпус 2, нет, да, да, да, да, да, Имеется, Грузовых лифтов: 0, Год постройки: 1969, улица Годовикова, 37.629259, 55.803944
Свяжитесь со мной на счет цены
10 дн.
D55S803944L37S629259D

На карте


Условия сделки

Источник


Старт продаж

Возможно заинтересует