Top.Mail.Ru

Просторная ул., д. 2

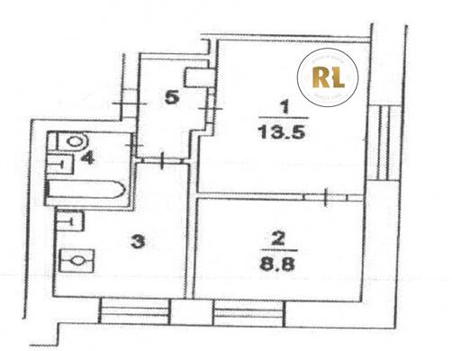
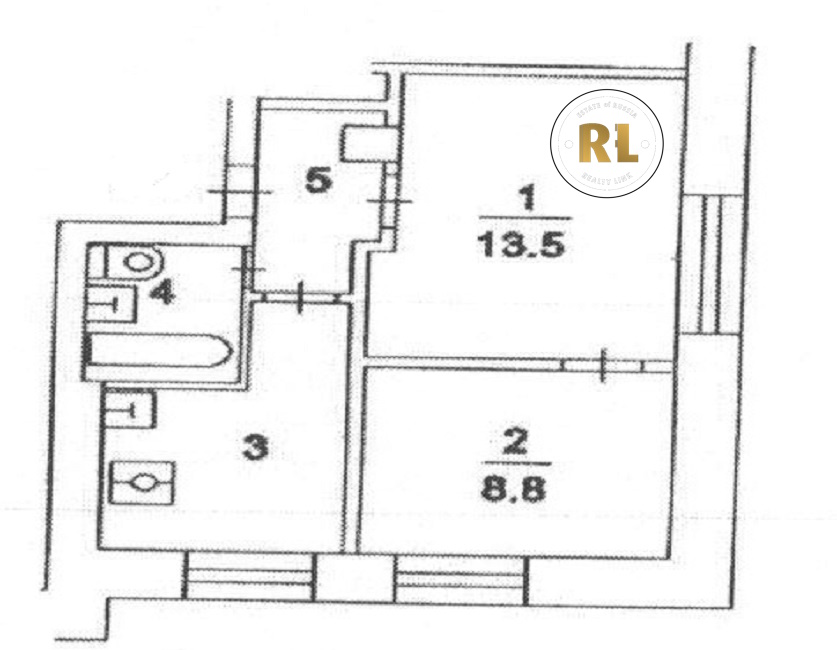
База каталог, Кол-во подъездов: 8, Имеется, II-29-04/Ю37, Москва, Преображенское, Пассажирский лифт: 8, От метро: 1080, Восточный, да, Наименьшее кол-во этажей: 9, Наибольшее кол-во этажей: 9, Преображенская площадь, Кол-во помещений: 289, Кол-во нежилых помещений: 4, Год ввода в эксплуатацию: 1969, 2-комн, Кол-во жилых помещений: 285, Не присвоен, дом 2, нет, да, да, да, да, да, Имеется, Грузовых лифтов: 0, Год постройки: 1969, Просторная улица, 37.713054, 55.804152
Свяжитесь со мной на счет цены
10 дн.
D55S804152L37S713054D

На карте


Условия сделки

Источник


Старт продаж

Возможно заинтересует