Top.Mail.Ru

Сиреневый бульвар, д. 67, к. 2

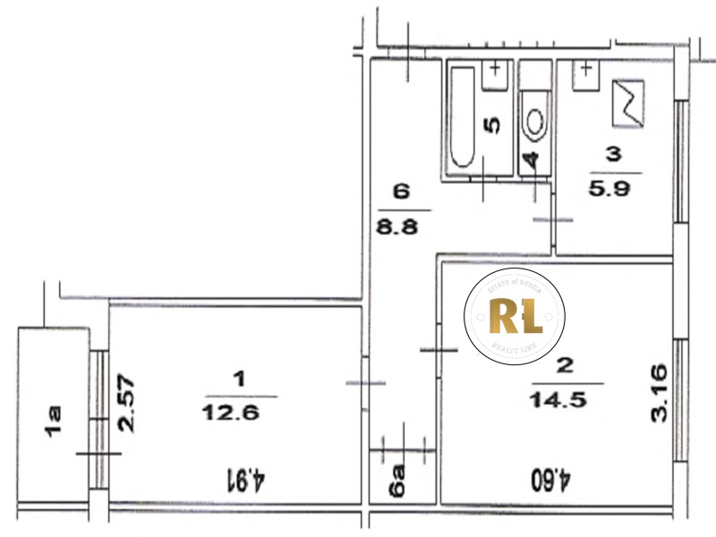
База каталог, Кол-во подъездов: 4, Имеется, II-49Д, Москва, Северное Измайлово, Пассажирский лифт: 4, От метро: 2050, Восточный, да, Наименьшее кол-во этажей: 9, Наибольшее кол-во этажей: 9, Щёлковская, Кол-во помещений: 143, Кол-во нежилых помещений: 0, Год ввода в эксплуатацию: 1967, 2-комн, Кол-во жилых помещений: 143, дом 67, корпус 2, нет, да, да, да, нет, нет, Имеется, Грузовых лифтов: 0, Год постройки: 1967, Сиреневый бульвар, 37.823592, 55.804283
Свяжитесь со мной на счет цены
10 дн.
D55S804283L37S823592D

На карте


Условия сделки

Источник


Старт продаж

Возможно заинтересует