Top.Mail.Ru

Халтуринская ул., д. 18

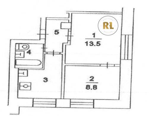
База каталог, Кол-во подъездов: 3, Имеется, II-29, Москва, Преображенское, Пассажирский лифт: 3, От метро: 1220, Восточный, да, Наименьшее кол-во этажей: 9, Наибольшее кол-во этажей: 9, Бульвар Рокоссовского, Кол-во помещений: 541, Кол-во нежилых помещений: 13, Год ввода в эксплуатацию: 1972, 2-комн, Кол-во жилых помещений: 528, дом 18, нет, да, да, да, да, нет, Имеется, Грузовых лифтов: 3, Год постройки: 1972, Халтуринская улица, 37.726313, 55.804810
Свяжитесь со мной на счет цены
10 дн.
D55S804810L37S726313D

На карте


Условия сделки

Источник


Старт продаж

Возможно заинтересует