Top.Mail.Ru

Новощукинская ул., д. 18, к. 1

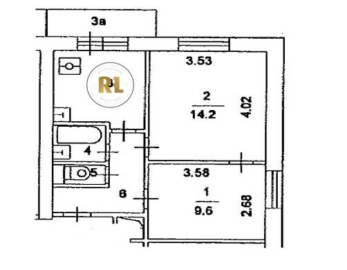
База каталог, Кол-во подъездов: 1, Отсутствует, II-18/22, Москва, Щукино, Площадь парковки: 0, Пассажирский лифт: 2, От метро: 860, Северо-Западный, нет, Наименьшее кол-во этажей: 12, Наибольшее кол-во этажей: 12, Щукинская, Кол-во помещений: 84, Кол-во нежилых помещений: 0, Год ввода в эксплуатацию: 1966, 2-комн, Кол-во жилых помещений: 84, Не присвоен, дом 18, корпус 1, нет, да, да, да, да, да, Отсутствует, Грузовых лифтов: 0, Год постройки: 1966, Новощукинская улица, 37.452543, 55.806160
Свяжитесь со мной на счет цены
10 дн.
D55S806160L37S452543D

На карте


Условия сделки

Источник


Старт продаж

Возможно заинтересует