Top.Mail.Ru

Просторная ул., д. 9

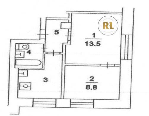
База каталог, Кол-во подъездов: 4, II-29, Москва, Богородское, Пассажирский лифт: 4, От метро: 1310, Восточный, да, Наименьшее кол-во этажей: 9, Наибольшее кол-во этажей: 9, Преображенская площадь, Кол-во помещений: 143, Кол-во нежилых помещений: 1, Год ввода в эксплуатацию: 1970, 2-комн, Кол-во жилых помещений: 142, дом 9, нет, да, да, да, да, нет, Имеется, Грузовых лифтов: 0, Год постройки: 1970, Просторная улица, 37.718022, 55.806464
Свяжитесь со мной на счет цены
10 дн.
D55S806464L37S718022D

На карте


Условия сделки

Источник


Старт продаж

Возможно заинтересует