Top.Mail.Ru

13-я Парковая ул., д. 31, к. 2

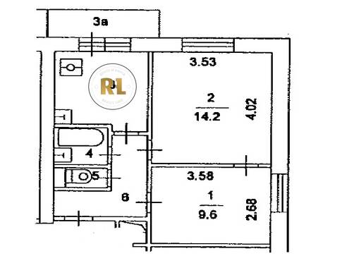
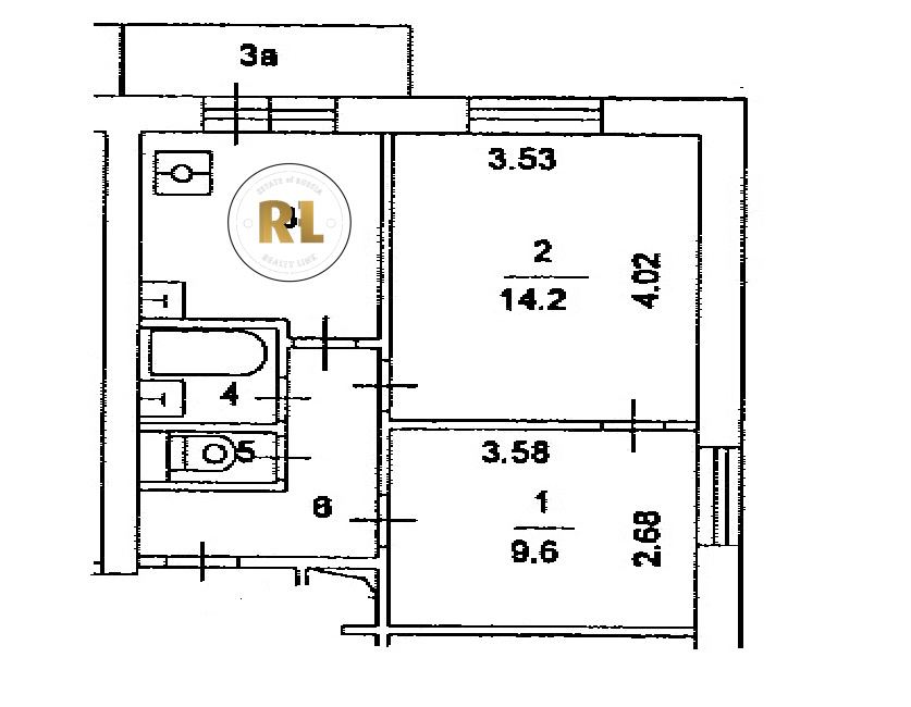
База каталог, Кол-во подъездов: 1, Отсутствует, II-18/22, Москва, Северное Измайлово, Площадь парковки: 0, Пассажирский лифт: 2, От метро: 800, Восточный, нет, Наименьшее кол-во этажей: 12, Наибольшее кол-во этажей: 12, Щёлковская, Кол-во помещений: 96, Кол-во нежилых помещений: 0, Год ввода в эксплуатацию: 1966, 2-комн, Кол-во жилых помещений: 96, D, дом 31, корпус 2, нет, да, да, да, да, да, Отсутствует, Грузовых лифтов: 0, Год постройки: 1965, 13-я Парковая улица, 37.809093, 55.807127
Свяжитесь со мной на счет цены
10 дн.
D55S807127L37S809093D

На карте


Условия сделки

Источник


Старт продаж

Возможно заинтересует