Top.Mail.Ru

4-я Гражданская ул., д. 43, к. 2

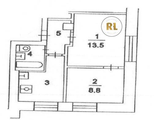
База каталог, Кол-во подъездов: 3, II-29, Москва, Богородское, Площадь парковки: 0, Пассажирский лифт: 0, От метро: 1270, Восточный, нет, Наименьшее кол-во этажей: 0, Наибольшее кол-во этажей: 5, Бульвар Рокоссовского, Кол-во помещений: 53, Кол-во нежилых помещений: 1, Год ввода в эксплуатацию: 1959, 2-комн, Кол-во жилых помещений: 52, В, дом 43, корпус 2, нет, да, да, да, да, нет, Грузовых лифтов: 0, Год постройки: 1959, 4-я Гражданская улица, 37.720762, 55.807208
Свяжитесь со мной на счет цены
10 дн.
D55S807208L37S720762D

На карте


Условия сделки

Источник


Старт продаж

Возможно заинтересует